Unsere Leistungen
Mechanische Konstruktion
Der Bereich mechanische Konstruktion umfasst grundlegend Konstruktionsleistungen in 2D oder 3D. Für unsere Kunden realiseren wir z.B. die Planung von Anlagenlayouts unter Berücksichtigung von Lean-Aspekten im 2D-Format. Die mechanische Konstruktion von Baugruppen oder Maschinen, inklusive Konstruktionsanalyse durch Belastungssimulationen, erfolgt hingegen im 3D-Format unter Nutzung aktuellster 3D-CAD-Software. Die dabei entstandenen CAD-Daten ermöglichen die direkte Verwendung in der CNC-gestützten Fertigung von Bauteilen. Darüber hinaus können anhand der entstandenen 3D-Modelle Zusammenhänge in abteilungsübergreifenden Besprechungen besser erläutert werden und die 3D-Modelle können bei Bedarf z.B. als Teil einer Gesamtanlagensimulation verwendet werden.
Elektrische Konstruktion
Die Elektrokonstruktion mittels aktueller E-CAD-Software beinhaltet neben der eigentlichen elektrischen Planung auch die fluidtechnische Planung. Durch die Nutzung von Add Ons in der Software, wird das fluidspezifische Engineering direkt mit dem elektrischen Engineering verbunden. Der daraus resultierende Vorteil für unsere Kunden ist eine durchgängige Bezeichnungssystematik, verbunden mit direkten Querverweisen zwischen elektrischer und fluidtechnischer Planung, für das schnelle Auffinden aller relevanten Informationen.
Die Elektrokonstruktion mittels aktueller E-CAD-Software beinhaltet neben der eigentlichen elektrischen Planung auch die fluidtechnische Planung. Durch die Nutzung von Add Ons in der Software, wird das fluidspezifische Engineering direkt mit dem elektrischen Engineering verbunden. Der daraus resultierende Vorteil für unsere Kunden ist eine durchgängige Bezeichnungssystematik, verbunden mit direkten Querverweisen zwischen elektrischer und fluidtechnischer Planung, für das schnelle Auffinden aller relevanten Informationen.
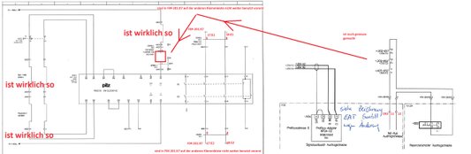
Darüber hinaus ermöglicht die verwendete E-CAD-Software in Verbindung mit einer kostenlos zur Verfügung gestellten App die Nutzung von Augmented Reality für die Instandhaltung. Unsere Kunden sparen im Fehlerfall Zeit und damit Geld, da die App die Beschriftung des anvisierten Bauteils erkennt, dieses im Plan anzeigt und alle verfügbaren technischen Daten sofort einblendet. Die langwierige Suche in z.T. mehrere hundert Seiten umfassenden Dokumentationen kann damit entfallen.
Digitalisierung
Technische Unterlagen für Maschinen und Anlagen, wie z.B. E-Pläne oder Fluid-Pläne, liegen oft in unterschiedlichen Formaten vor und unterliegen im Regelfall betriebsbedingten Anpassungen. Das erschwert gerade im Bereich der Instandhaltung die Nutzung der Unterlagen und kann zu Mehrarbeit aufgrund unterschiedlicher Dokumentationsstände z.B. zwischen E-Plan und Fluid-Plan führen. Ein Beispiel für betriebsbedingte Anpassungen ist die Modifikation von Maschinen- oder Anlagenteile in Eigenregie, weil zusätzliche Sensorik und Aktorik benötigt werden. Die Änderungsdokumentation erfolgt vielfach durch die klassische "Roteintragung" in den vorhandenen papierbasierten Unterlagen oder durch Handskizzen. Um trotzdem das Ziel einer einheitlichen und zuverlässigen Datenbasis zu erreichen und einen Verlust der Änderungen zu vermeiden, ist eine Digitalisierung der Unterlagen empfehlenswert.
Wir digitalisieren und revisionieren Ihre PDF-Pläne, Ihre papierbasierten Unterlagen sowie Ihre Handskizzen und erstellen Ihnen eine aktuelle, normenkonforme Dokumentation, inklusive aktualisierter Stücklisten. In diesem Zusammenhang kann die Instandhaltung durch die Nutzungen von Augmented Reality, in Verbindung mit einer kostenlos durch den Hersteller der E-CAD-Software zur Verfügung gestellten App, effizienter gestaltet werden. Die App erkennt die Beschriftung des anvisierten Bauteils, zeigt es sofort im Plan und alle verfügbaren technischen Daten an. Die langwierige Suche in z.T. mehrere hundert Seiten umfassenden Dokumentationen kann damit entfallen.
Technische Unterlagen für Maschinen und Anlagen, wie z.B. E-Pläne oder Fluid-Pläne, liegen oft in unterschiedlichen Formaten vor und unterliegen im Regelfall betriebsbedingten Anpassungen. Das erschwert gerade im Bereich der Instandhaltung die Nutzung der Unterlagen und kann zu Mehrarbeit aufgrund unterschiedlicher Dokumentationsstände z.B. zwischen E-Plan und Fluid-Plan führen. Ein Beispiel für betriebsbedingte Anpassungen ist die Modifikation von Maschinen- oder Anlagenteile in Eigenregie, weil zusätzliche Sensorik und Aktorik benötigt werden. Die Änderungsdokumentation erfolgt vielfach durch die klassische "Roteintragung" in den vorhandenen papierbasierten Unterlagen oder durch Handskizzen. Um trotzdem das Ziel einer einheitlichen und zuverlässigen Datenbasis zu erreichen und einen Verlust der Änderungen zu vermeiden, ist eine Digitalisierung der Unterlagen empfehlenswert.
Wir digitalisieren und revisionieren Ihre PDF-Pläne, Ihre papierbasierten Unterlagen sowie Ihre Handskizzen und erstellen Ihnen eine aktuelle, normenkonforme Dokumentation, inklusive aktualisierter Stücklisten. In diesem Zusammenhang kann die Instandhaltung durch die Nutzungen von Augmented Reality, in Verbindung mit einer kostenlos durch den Hersteller der E-CAD-Software zur Verfügung gestellten App, effizienter gestaltet werden. Die App erkennt die Beschriftung des anvisierten Bauteils, zeigt es sofort im Plan und alle verfügbaren technischen Daten an. Die langwierige Suche in z.T. mehrere hundert Seiten umfassenden Dokumentationen kann damit entfallen.
Anlagenmontage
Im Bereich der Anlagenmontage realisieren wir gemeinsam mit erfahrenen Partnern die Umsetzung der Projekte bei unseren Kunden. Sowohl unsere eigenen Mitarbeiter, als auch unsere Partner verfügen über langjährige Erfahrungen im Bereich der Anlagenmontagen im industriellen Bereich, wie z.B. der Automobilindustrie oder Fertigungen für Komponenten der erneuerbaren Energien.
Maschinenabnahmen
Entsprechen die gelieferten Maschinen und Anlagen dem vereinbarten Lastenheft, erfolgte der Aufbau normgerecht, funktioniert alles wie geplant und ist die Dokumentation vollständig? Diese Fragen stellen sich spätestens zum Ende jedes Projektes und sind entscheidend für dessen Abschluss. Die Klärung dieser Fragen ist nur durch eine definierte und dokumentierte Abnahmeprozedur möglich.
Da es sich bei der Abnahme von Maschinen und Anlagen um umfangreiche Tätigkeiten handelt, bei denen langjährige Erfahrungen im Maschinen- und Anlagenbau empfehlenswert sind, bieten wir unseren Kunden Unterstützung bei den Abnahmen an. Unsere Mitarbeiter verfügen sowohl über umfangreiche Maschinen- und Anlagenbauerfahrungen, als auch über ein "Standard-Abnahmeprotokoll" für die Dokumentation, das entsprechend den Kundenanforderungen erweitert und angepasst wird.
Abnahmeprotokoll


















